手 机:19924390438
邮 箱:market@hongsiang1683.com
电 话:020-85681020(华南)
网 址:hongsiang1683.com
地 址:广州市番禺区番禺大道北555号天安科技园

项目简介

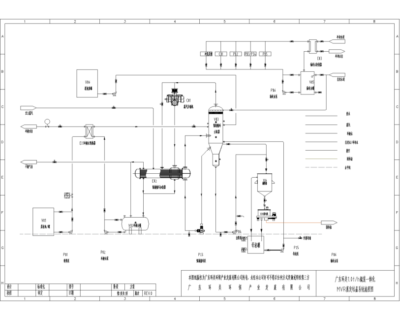
项目名称:氨基酸含盐废水处理项目
设计能力:1T/H撬装一体化MVR蒸发结晶系统
客户单位:广东丽臣奥威实业有限公司
设计单位:长运娱乐 — 大舞台,有梦您就来! cyyl
物料情况
进水水质

方案设计

项目现场





1
撬装一体化蒸发器-工厂现货0.5t/h


02
撬装一体化蒸发器-工厂现货1t/h


03
撬装一体化蒸发器-工厂现货1.5t/h


04
撬装一体化蒸发器-工厂现货2t/h


撬装一体化蒸发器应用案例
海淡所


撬装一体化蒸发器应用案例
垃圾渗滤液全量化处理



撬装一体化蒸发器应用案例
盐湖提锂行业


广东长运娱乐撬装一体化MVR蒸发器采用标准化、模块化的设计理念,将MVR蒸发器各单元高度集成于一体,把MVR蒸发器的优点和撬装设备便捷运输的特点有机的结合在一起。和传统蒸发器相比,撬装一体化MVR蒸发器具有占地面积更小、免现场安装、维护方便等诸多优点。
match
1、关于处理量的选择
* 您公司进蒸发设备的废水处理总量,除以每天的运行时间,即可得处理量,蒸发器一般24小时连续运行。
举例说明:比如您需要蒸发处理的水量Q为20t/d ,每天24小时,那么蒸发器的处理量W=Q/24=20/24≈0.83t/h,圆整后您可以选择蒸发量为1t/h的MVR蒸发器。
2、关于板式和管式的选择
* 管式蒸发器比较通用,适用范围更广。通俗来说,能用板式蒸发器来处理的物料一定能用管式蒸发器来处理。但用管式蒸发器能处理的物料,板式蒸发器不一定能处理。板式蒸发器适用于浓缩以及有机物浓度不高、富集后物料流动性依然很好也不粘稠的高盐废水结晶。
同等工况下,板式蒸发器的效率比管式蒸发器高,占地也相对少一些,维修清理也更方便。
* 那么管式和板式蒸发器如何初步选择?根据您的物料情况来选择。
若您的物料只需浓缩,那么管式和板式都可以,从效率等各方面来考虑,建议优选板式;若您的物料需要结晶,但物料有机物不多,富集后流动性依然很好,那么可优选板式;其它工况选择管式。
3、关于浓缩型和结晶型的选择
* 浓缩型蒸发器主要用来提高物料浓度,用来达到某一个特定的浓度点,食品、医药、饮品行业应用较多。
比如桃汁、苹果汁、中药提取液的浓缩提浓等等;或者含盐量很低的废水浓缩减量,都可以选择浓缩型蒸发器。
* 结晶型蒸发器主要用来蒸发结晶,通过蒸发器提高浓度,并且需要将溶解的无机盐结晶分离出来,此种工况选择结晶型蒸发器。
4、关于标准版以及高配版的选型
* 标准版采用性价比高的零部件供应商,适合于连续运行要求相对不高的工况。
* 高配版采用一些合资或高端品牌作为供应商,适用于连续不间断运行要求较高的场合,比如连续运行时间不小于15天等。
5、关于材质的选择
* 目前蒸发器主要用于废水处理上,高温情况下物料腐蚀性比较大,目前广东长运娱乐蒸发器标配钛材材质。
若您的物料状况,确实不需要钛材,那么也可以根据物料情况定制材质,我司提供304、316L、2205等材质的蒸发器定制。
服务热线
020-85681020(华南)
邮箱:market@hongsiang1683.com
联系人:周经理19924390438
研发中心:广州市番禺区番禺大道北555号天安总部中心1号楼9层
生产基地:广东省韶关市浈江区狮塘路39号

扫一扫,关注长运娱乐