手 机:19924390438
邮 箱:market@hongsiang1683.com
电 话:020-85681020(华南)
网 址:hongsiang1683.com
地 址:广州市番禺区番禺大道北555号天安科技园

项目简介

项目名称:氨基酸含盐废水处理项目
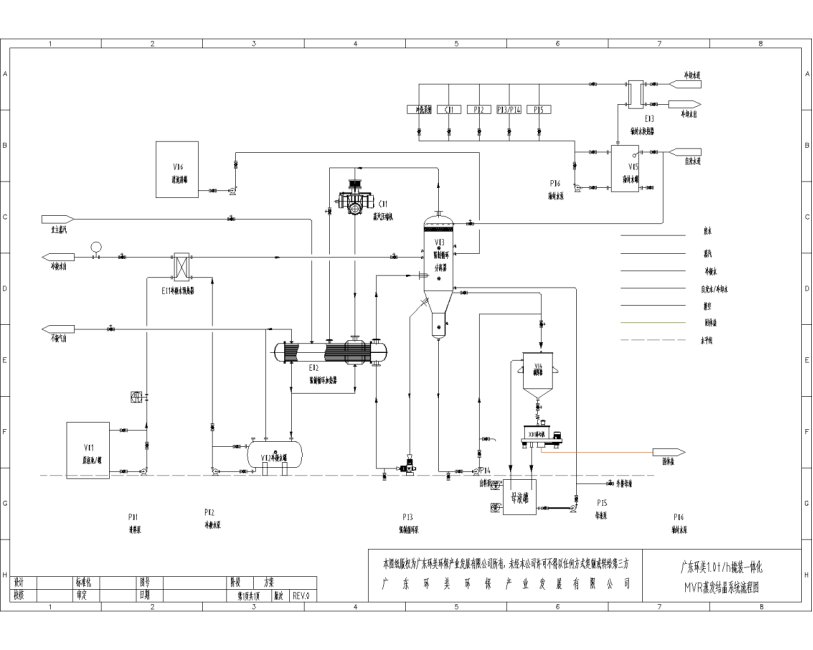
设计能力:1T/H撬装一体化MVR蒸发结晶系统
客户单位:广东丽臣奥威实业有限公司
设计单位:长运娱乐 — 大舞台,有梦您就来! cyyl
物料情况
进水水质

方案设计

蒸发工艺简介
蒸发系统原理介绍
强制循环蒸发工艺
强制循环蒸发器用于避免在加热面上因沸腾形成结垢或产生结晶。为此,蒸发器中的的流动速度必须高。溶液在设备内的循环主要依靠外加动力(强制循环泵)所产生的强制流动。原料液由循环泵自下而上打入,沿加热室向上流动。当循环液体流过热交换器时被加热,然后在分离器的压力降低时部分蒸发,蒸汽和料液含物在蒸发室分开,蒸汽由上部排出,料液落下,经圆锥形底部被循环泵吸入,再进入加热室,继续循环。
强制循环蒸发器具有以下优点:




服务热线
020-85681020(华南)
邮箱:market@hongsiang1683.com
联系人:周经理19924390438
研发中心:广州市番禺区番禺大道北555号天安总部中心1号楼9层
生产基地:广东省韶关市浈江区狮塘路39号

扫一扫,关注长运娱乐