手 机:19924390438
邮 箱:market@hongsiang1683.com
电 话:020-85681020(华南)
网 址:hongsiang1683.com
地 址:广州市番禺区番禺大道北555号天安科技园


项目名称:江门励福含盐废水MVR蒸发处理项目
设备名称:广东长运娱乐MVR蒸发系统
设计能力:额定蒸发量1.3T/H
客户单位:励福(江门)环保科技股份有限公司
设计单位: 长运娱乐 — 大舞台,有梦您就来! cyyl
物料蒸发特性分析
物料一【实验结果】:
1、废水初始沸点为100.9℃,蕞终浓缩3.7倍后沸点为107℃。
2、整个蒸发过程稳定,无明显泡沫,有结晶体产生。
3、冷凝水呈无色透明,无特殊气味,PH值为12,电导率:730μ s/cm;冷凝水的COD、氨氮、色度待送检。
物料二【实验结果】:
1、废水初始沸点为100.5℃,蕞终浓缩6倍后沸点为105℃。
2、整个蒸发过程稳定,无明显泡沫,有结晶体产生,随着浓缩倍数的增加,颜色加深,母液PH为7,蒸发所形成的晶体可以溶于水。
3、冷凝水呈无色透明,无特殊气味,PH值为8.5,电导率:1200μ s/cm;冷凝水的COD、氨氮、色度待送检。

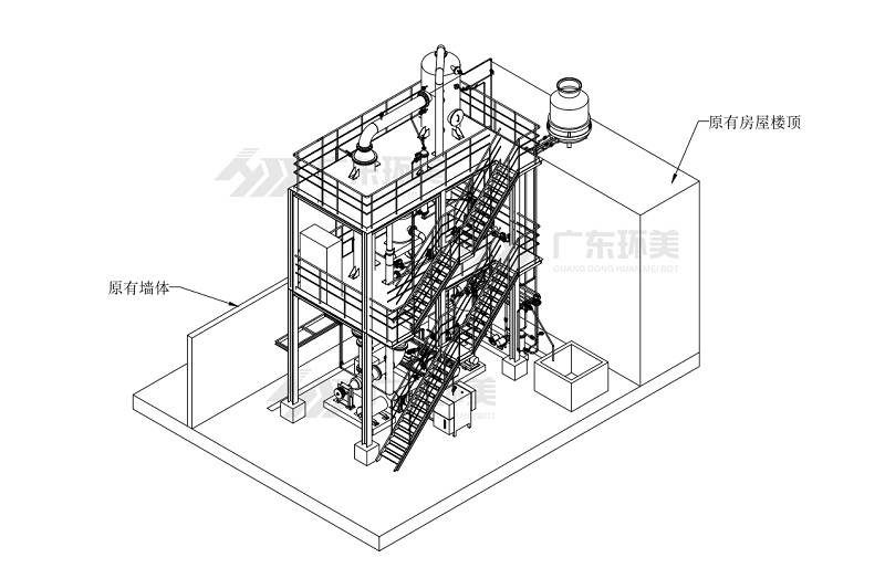
广东长运娱乐设备轴测图

广东长运娱乐MVR工艺流程图
广东长运娱乐MVR蒸发器是当前国际领先的高 效节能蒸发系统,其原理是将蒸发产生的二次蒸汽通过压缩机加压升温,提高蒸汽的热焓并作为热源给物料加热,从而实现循环蒸发,冷凝下来的热水再与原料换热,进一步回收热量,实现了潜热的充分利用,大幅度降低蒸发能耗,显著节约运行成本。
MVR蒸发系统优点

1、使用MVR蒸发技术,二次蒸汽回收利用率达到99%。
2、该蒸发器主要使用电能蒸发,仅需少量蒸汽、其能耗为传统蒸发器的60%左右。
3、低温差蒸发,降低结垢几率。
4、设备全自动化操作,节省人力资源。
5、使用蒸汽专用罗茨压缩机,生产能力大,强度高,压缩机转子采用TA2,蜗壳采用316L,抗腐蚀能力强。
6、采用列管式强制循环传热专利技术。
7、高性能分离器采用外置除沫器+丝网除雾分离技术,优化蒸馏水质量。
8、针对强化湍流而设计的传热面结构能够提供良好的热传递和能量回收效率。
9、蒸馏水余热用于预热废水,能够减少能源消耗。
10、采用带有移动互联网连接功能的远程诊断系统(如果授权),实时监控系统运行状态,可提前准备维护配件,有助于计划保养。
配备西门子 S7-1200 PLC。
11、控制界面显示整个处理系统中所有的重要过程参数,运行状态一目了然。
12、结构清晰的菜单式操作,没有多功能键,操作直观,易于培训。
13、运行数据蕞多可保存 12 个月。



服务热线
020-85681020(华南)
邮箱:market@hongsiang1683.com
联系人:周经理19924390438
研发中心:广州市番禺区番禺大道北555号天安总部中心1号楼9层
生产基地:广东省韶关市浈江区狮塘路39号

扫一扫,关注长运娱乐